Sportforum Berlin
Neubau Sportfunktionsgebäude in Containerbauweise

Die Herausforderung

Auf dem Gelände des Sportforums Berlin soll ein bestehendes Stadion für die Austragung von Regionalliga-Spielen ertüchtigt werden. Bis zur Inbetriebnahme des Neubaus des Großen Stadions im Friedrich-Ludwig-Jahnsportpark (JSP) dient es als Interimslösung zur Aufrechterhaltung des Spielbetriebs vom BFC Dynamo. Da sich das
Bestandsstadion zum Teil in einem baulich schlechten Zustand befindet, kann es nur noch bedingt die erforderliche Nutzung als Fußballstadion gewährleisten und muss in dem notwendigen Maße ertüchtigt werden, dass die Aufrechterhaltung des Regionalliga-Spielbetriebs für den BFC sichergestellt werden kann.

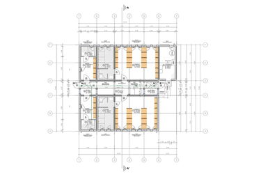
Des Weiteren erfolgt die Schaffung einer neuen Containeranlage zur Unterbringung von zusätzlichen Mannschafts- und Schiedsrichterumkleiden.

Das Resultat

Auf dem Gelände des Sportforum Berlin wird ein ca. 220 m² großes, temporäres Sportfunktionsgebäude in Containerbauweise für Duschen und Umkleiden errichtet.
Die 1-geschossige Containeranlage wird aus individuellen Containern in Systembauweise gefertigt.

Projektdetails

Gebäude:

  • 8 Container und 2 Dreifachcontainer in Systembauweise
  • Umkleide- und Sanitärcontainer für Mannschaften und Schiedsrichter

Freianlagen:

  • Wegeflächen

Auftraggeber:
Senatsverwaltung für Inneres und Sport Berlin


Zeitraum:
2020 - 2022


Investitionskosten:
ca. 510.000 €


Nutzung:
Sportfunktionsgebäude


Leistungen:
LPH 1 – 8

unterschiedliche Sportgeräte für den Schul- und Vereinssport liegen arrangiert auf grünem Rasen

Sie möchten Ihr Vorhaben mit uns besprechen? Vereinbaren Sie jetzt einen kostenlosen Beratungstermin.