Eckernförder SV von 1923 e.V.
Sanierung und Erweiterung Bestandsgebäude / Neubau Vereinsgebäude

Die Herausforderung

Der Eckernförder SV von 1923 e.V. strebt die Überplanung seiner vereinseigenen Sportanlage „Stadtwerke Arena“ in Eckernförde an. Neben der Sanierung und Erweiterung der Sportflächen im Außenbereich sollen auch verschiedene Hochbaumaßnahmen realisiert werden.

Bedarfsauslösende Gründe sind u.a. energetische Defizite im Bestand und Infrastrukturprobleme. Da es sich um eine alte Anlage handelt, fehlen zeitgemäße Sanitär- und Umkleideeinrichtungen für die Sportler, sowie Räumlichkeiten in ausreichender Anzahl und Größe, um dem stetig wachsendem Bedarf und Interesse der Sportanlage gerecht zu werden.

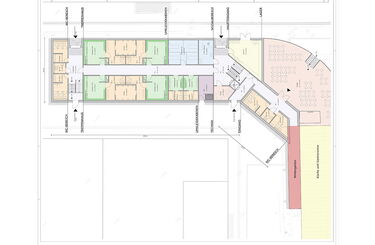
Das Resultat

Die Umkleideräume und sanitären Anlagen im alten Vereinsheim sollen saniert werden. Die Bestandsgastronomie mit Küchenbereich wird umgebaut und modernisiert. Der Gastraum wird zukünftig für ca. 100 Besucher neu konzipiert. Die vorhandene Terrasse wird erneuert und erweitert. Unmittelbar angrenzend zur neu geplanten Terrasse wurde ein Verbindungsgang konzipiert, der die neuen sanitären Anlagen enthält.

Das neue Vereinsheim wird parallel zwischen den Fußballplätzen als Nord-Süd-Ausrichtung errichtet. Das 2-geschossige Gebäude erstreckt sich auf einer Länge von ca. 42,00 m im Bereich des 16,00 m Raumes des C-Platzes und hat eine Breite von ca. 13,00 m. Im Erdgeschoss befinden sich die Sozialräume für die Sportler, im Obergeschoss sind die Büroräume für die Verwaltung konzipiert.

Südlich zum Bestandsvereinsheim liegt das alte Bürogebäude des ESV. Das alte Gebäude soll abgebrochen und an gleicher Stelle neu errichtet werden. Auf einer Fläche von ca. 125,00 m² entstehen die neue Stadionkasse mit Blick zum C-Platz, ein zusätzlicher Besprechungsraum und eine Werkstatt.

Projektdetails

  • Umkleiden im Bestand
  • Gastronomie mit Küche im Bestand und neuer Terrasse für jeweils ca. 100 Besucher
  • Sanitäre Anlagen für Besucher
  • Umkleideräume für Mannschaften, Schiedsrichter und Trainer mit Dusch-, Wasch- und WC-Bereich
  • Lagerräume für Equipment
  • Büroräume und Nebenräume
  • Besprechungsraum
  • Stadionkasse
  • Werkstatt

Auftraggeber:
Eckernförder SV von 1923 e.V. (Schleswig-Holstein)


Zeitraum:
2021


Investitionskosten:
?


Nutzung:
Umkleideräume, Gastronomie, Büroräume


Leistungen:
Machbarkeitsstudie

unterschiedliche Sportgeräte für den Schul- und Vereinssport liegen arrangiert auf grünem Rasen

Sie möchten Ihr Vorhaben mit uns besprechen? Vereinbaren Sie jetzt einen kostenlosen Beratungstermin.